TOBIAS WENZEL
Bundesblock Berlin
Archäologische Zone, Jüdisches Museum Köln
Haus P München
Bibliothek Humboldtuniversität Berlin
Casale Bosco Broio
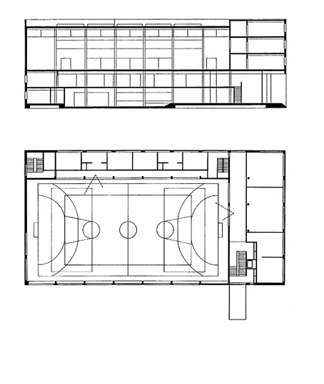
Stadthalle Bremen
Wohnen Stadtwerke München
Wohnen Rosenpark Stuttgart
13 Horizonte Paris
Der Raum an sich
Verwaltung Dorma Ennepetal
Justizzentrum Rosenheim
Wohnen am Horn Weimar
Physikalisches Institut Humboldtuniversität Berlin
Umweltbundesamt Dessau
Fachhochschule Wismar
Filmhochschule Potsdam
dvg 2000 Hannover
Bauhaus-Universität Weimar
Oberstufenzentrum Sozialversicherung Berlin
VTG Hamburg
Alter Schlachthof Berlin
Gartenstadt Rötha
Stadtmitte Spreeinsel Berlin
<
Wettbewerb 1994, mit léonwohlhage architekten, 1. Preis
<
>